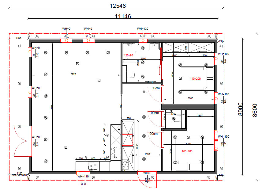
- Salon z aneksem kuchennym – 39.50 m²
- Główna sypialnia – 10.80 m²
- Sypialnia – 9.10 m²
- Łazienka – 5.50 m²
- Wc – 1.40m²
- Korytarz – 11.50 m²
Dom mobilny
- Powierzchnia użytkowa: 77.80 m²
- Wymiary zewnętrzne: 12.54 x 8.60 m
- Sypialnie: 2
- Cena: od 470 400 zł netto
Dom został wyposażony w ogrzewanie gazowe z grzejnikami, które zapewnia komfort cieplny oraz efektywne ogrzewanie wnętrza przez cały rok.
Na podłogach zastosowano panele winylowe SPC, cenione za trwałość, odporność na uszkodzenia oraz łatwość w utrzymaniu czystości.
Dwuszybowe okna w kolorze antracytowym (zewnątrz), białe (wewnątrz), (możliwość wyboru okien trzyszybowych oraz zmiany kolorystyki na białą) co pozwala dopasować dom do indywidualnych preferencji użytkowania.
Elewację wykonano z sidingu, który nadaje bryle nowoczesny wygląd i charakteryzuje się wysoką odpornością na warunki atmosferyczne.
Konstrukcja domu oparta jest na stalowym podwoziu dwuosiowym IPE 270, zapewniającym stabilność oraz bezpieczeństwo użytkowania.
Dodatkowo zastosowano izolację z wełny mineralnej o współczynniku 0,038, obejmującą 100 mm w ścianach, 150 mm w dachu oraz 150 mm w podłodze, co przekłada się na dobrą energooszczędność oraz komfort użytkowania przez cały rok.
Salon z aneksem kuchennym
Tworzy spójną i komfortową przestrzeń do życia.
Salon należy do własnej aranżacji klienta aczkolwiek w standardzie oferujemy w pełni wyposażoną kuchnie ze sprzętami marki Whirlpool: zlewozmywak z baterią, płytę grzewczą, okap, zmywarkę, lodówkę oraz kuchenkę mikrofalową typu combi. Dzięki temu kuchnia jest gotowa do użytkowania od pierwszego dnia, a jednocześnie ułatwia codzienne gotowanie i przechowywanie.
Główna sypialnia
Zapewnia komfortowy wypoczynek, a ponadto dużą ilość miejsca do przechowywania. Znajduje się w niej podwójne łóżko 140 × 200 cm, natomiast duża szafa w zabudowie z przesuwnymi drzwiami pozwala na wygodną organizację przestrzeni.
Sypialnia
Wyposażona jest w podwójne łóżko 160 × 200 cm. Może pełnić funkcję sypialni, pokoju gościnnego lub strefy relaksu. Dzięki prostemu układowi wnętrze pozostaje ustawne i łatwe do aranżacji.
Łazienka
Została zaprojektowana z myślą o codziennym komforcie. Znajduje się tu kabina prysznicowa 120 x 90 z kompletnym zestawem, toaleta w zabudowie oraz szafka z umywalką. Dodatkowo nad umywalką umieszczono szafkę z lustrem, a całość uzupełnia grzejnik, który zwiększa wygodę użytkowania.
Wc
Oddzielne WC stanowi praktyczne uzupełnienie mieszkania. Wyposażono je w toaletę w zabudowie oraz niewielką szafkę z umywalką. W rezultacie przestrzeń jest funkcjonalna i wygodna.
Korytarz
W korytarzu znajduje się duża szafa w zabudowie z przesuwnymi drzwiami. Dzięki temu przestrzeń wejściowa pozostaje uporządkowana, natomiast przechowywanie odzieży i akcesoriów staje się wygodne i estetyczne.
Charakterystyka domów mobilnych
Nowoczesna alternatywa dla tradycyjnego budownictwa, która łączy w sobie funkcjonalność oraz mobilność. Dzięki temu gotowy dom mobilny możesz ustawić niemal w dowolnym miejscu, bez konieczności wykonywania czasochłonnych i kosztownych prac ziemnych.
Co istotne, już w standardzie otrzymujesz w pełni wyposażoną kuchnię ze sprzętem AGD, a także funkcjonalną łazienkę oraz wygodne sypialnie, które zapewniają komfort codziennego użytkowania. Ponadto do dyspozycji masz przestronną strefę dzienną, którą – w zależności od potrzeb – możesz zaaranżować dokładnie po swojemu.
Formularz kontaktowy
Aby ułatwić Ci szybki kontakt, przygotowaliśmy prosty formularz, który znajdziesz poniżej.
Wystarczy, że wpiszesz swoje dane oraz wiadomość, a nasz zespół odpowie tak szybko, jak to możliwe.
Prosimy o podanie aktualnego adresu e-mail, abyśmy mogli sprawnie się z Tobą skontaktować.
