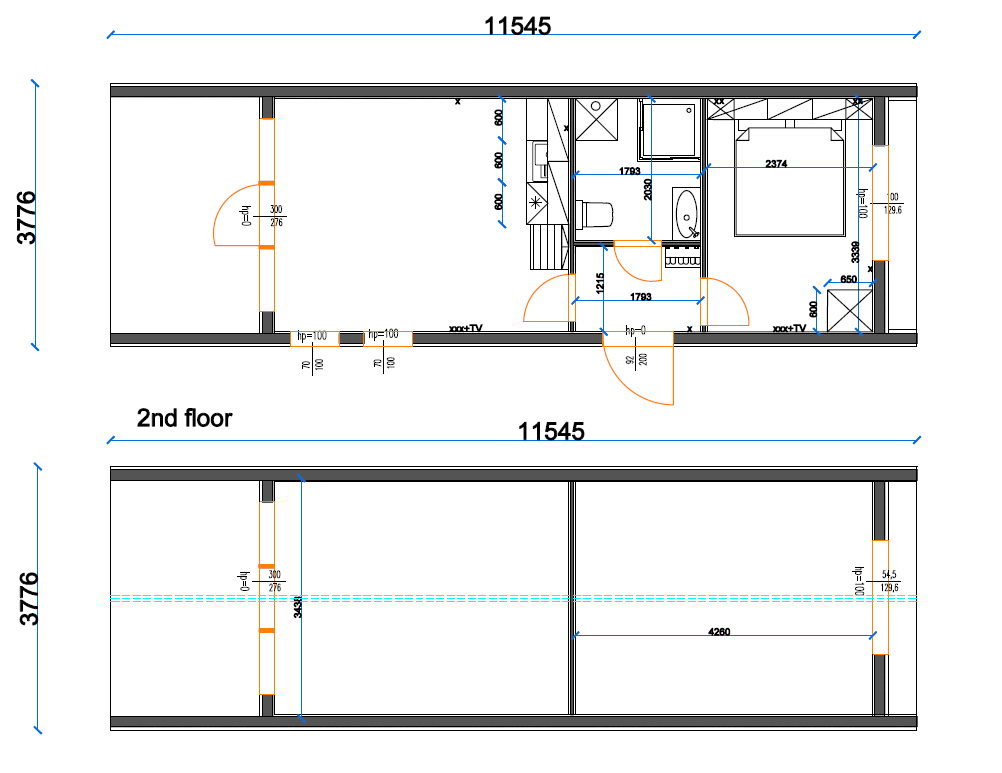
- Salon z aneksem kuchennym
- Sypialnia
- Łazienka
- Antresola
INARI
- Powierzchnia użytkowa: 32 m²
- Wymiary zewnętrzne: 11.54 m x 3.77 m
- Sypialnie: 1
- Cena: Zapytaj sprzedawcę
Ogrzewanie zapewnia kominek na drewno lub – w zależności od preferencji – grzejniki elektryczne, co pozwala dopasować sposób utrzymania ciepła do indywidualnych potrzeb.
Na podłodze zastosowano panele winylowe SPC, odporne na wilgoć i łatwe w utrzymaniu czystości.
Dodatkowo, okna dwuszybowe antracyt (zewnątrz), białe (wewnątrz) dbają o właściwą izolację termiczną oraz dostęp naturalnego światła, a ich uniwersalny wygląd doskonale komponuje się z różnymi aranżacjami wnętrz.
Z zewnątrz dom INARI wykończony jest elewacją z deski elewacyjnej (postarzana deska szczotkowana), która nadaje całości naturalnego, ciepłego charakteru i jednocześnie ułatwia utrzymanie estetyki na długie lata.
Pod względem parametrów cieplnych konstrukcja prezentuje się wyjątkowo solidnie – zastosowano izolację ścian 150 mm, podłogi 200 mm oraz dachu 200 mm, co przekłada się na komfort cieplny o każdej porze roku.
Salon z aneksem kuchennym
Salon należy do własnej aranżacji klienta.
Natomiast aneks kuchenny został w pełni zabudowany i wyposażony w niezbędne sprzęty.
Do dyspozycji znajduje się zlewozmywak z baterią, a także kuchenka indukcyjna wolnostojąca (2-palnikowa).
Całość uzupełnia mała lodówka oraz okap podszafkowy co sprawia, że kuchnia jest gotowa do codziennego użytkowania od razu po wprowadzeniu.
Sypialnia
Centralnym punktem jest łóżko o wymiarach 200 x 160 cm, wyposażone w komfortowy materac.
Dodatkowo, nad łóżkiem umieszczono praktyczną zabudowę z szafek wiszących, która pozwala na sprytne wykorzystanie przestrzeni.
Całość uzupełnia pojemna szafa 60×65 cm, zapewniająca odpowiednie miejsce do przechowywania ubrań i akcesoriów.
Korytarz
W korytarzu przewidziano małą szafkę na buty, wieszak oraz siedzisko, dzięki czemu można wygodnie przygotować się do wyjścia.
Antresola
Dodatkowym atutem domku jest antresola – w pełni przygotowana do aranżacji przez przyszłego właściciela.
Może stać się zarówno przytulną sypialnią, pokojem dla dzieci, jak i przestrzenią do pracy czy relaksu.
Łazienka
Nowoczesna kabina prysznicowa 80x80cm wraz z funkcjonalnym zestawem prysznicowym.
Oprócz tego, pomieszczenie wyposażono w lustro, szafkę z umywalką, co zapewnia wygodne miejsce na codzienne akcesoria.
Całość dopełnia wolnostojąca toaleta, tworząc praktyczną przestrzeń.
Domy z antresolą – funkcjonalność i przestrzeń w nowoczesnym wydaniu
Jednym z powodów, dla których tak wiele osób decyduje się na domy z antresolą, jest jego wyjątkowa elastyczność. Co więcej, dzięki przemyślanemu układowi wnętrza, przestrzeń można łatwo dopasować do indywidualnych potrzeb mieszkańców.
Antresola daje dodatkowe miejsce, które – w zależności od oczekiwań – może pełnić funkcję sypialni, gabinetu albo strefy relaksu. Dzięki temu dom zyskuje jeszcze więcej możliwości aranżacyjnych, a każdy domownik może wykorzystać przestrzeń na swój sposób.
Ponadto, otwarte wnętrze sprawia, że całość jest nie tylko jasna, ale również wyjątkowo przestronna.
Formularz kontaktowy
Aby ułatwić Ci szybki kontakt, przygotowaliśmy prosty formularz, który znajdziesz poniżej.
Wystarczy, że wpiszesz swoje dane oraz wiadomość, a nasz zespół odpowie tak szybko, jak to możliwe.
Prosimy o podanie aktualnego adresu e-mail, abyśmy mogli sprawnie się z Tobą skontaktować.
